04183 936 000 Montag bis Freitag | 9-17 Uhr
Wohnen
Kauf
Haus
Neu
Exklusiv

Leben auf einer Ebene: Stilvoller Winkelbungalow in Bendestorf

Objektbeschreibung

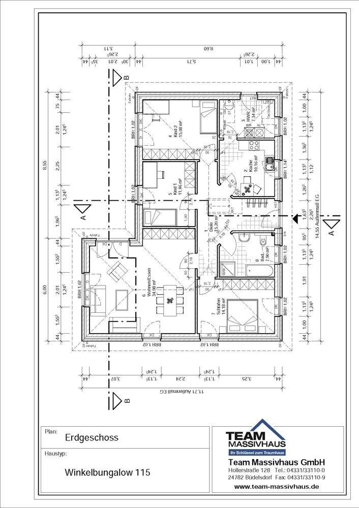
Auf dem Grundstück des Rüschdamm 3 entsteht (nach Planung) ein moderner, ebenerdiger Winkelbungalow mit funktionalem Grundriss und klarer Trennung von Wohn- und Privatbereich. Auf einer Ebene bietet das Haus 4 Zimmer und eignet sich ideal für Paare, Familien oder alle, die komfortables Wohnen ohne Treppen bevorzugen.

Herzstück ist der großzügige Wohn-/Essbereich mit direktem Zugang zur Terrasse und in den Garten (nach Ausführung). Die separate Küche ist praktisch angebunden. Im privaten Bereich stehen ein Elternschlafzimmer sowie zwei weitere Zimmer zur flexiblen Nutzung (Kind/Gast/Büro) zur Verfügung. Ein Badezimmer sowie ein Hauswirtschaftsraum (HWR) ergänzen das Raumangebot sinnvoll.

Hinweis: Das Objekt befindet sich in der Planungs-/Bauphase; Grundriss und Ausstattungsdetails können je nach Ausführung/Absprache variieren.

Lage

Bendestorf, ein äußerst renommierter, malerischer Ort in der Nordheide, gehört zum südlichen Einzugsbereich Hamburgs. Bendestorf gehört der Samtgemeinde Jesteburg an und liegt direkt am Landschaftsschutzgebiet Kleckerwald. Die hügelige Landschaft, in der sich Waldflächen, Wiesen und Felder abwechseln sowie der gewachsene Ortskern mit seinen schönen Gebäuden und dem alten Eichenbaumbestand machen den besonderen Charme dieses Ortes aus. Zahlreiche Freizeiteinrichtungen, ein EDEKA Einkaufsmarkt, Bankautomat, Ärzte sowie Kindergärten, eine Krippe, Grundschule und Freibad sind vorhanden. Die weiterführenden Schulen in Jesteburg, Hittfeld und Buchholz werden mit dem Schulbus angefahren. Per PKW ist die Hamburger Innenstadt sowohl über die A1 (BAB-Anschlussstelle Hittfeld) als auch über die A7 (BAB-Anschlussstelle Ramelsloh oder Fleestedt) in ca. 30 Minuten zu erreichen. Mit der Bahn ist Hamburg gut über die Bahnhöfe in Buchholz, Klecken und Hittfeld zu erreichen.

Ausstattung

Das Haus ist als moderner, ebenerdiger Bungalow in massiver Bauweise geplant. Die Beheizung erfolgt über eine Luft-Wasser-Wärmepumpe, wodurch ein energieeffizienter und zeitgemäßer Betrieb vorgesehen ist. Die Ausführung von Fenstern, Innen- und Außentüren sowie die Auswahl von Boden- und Wandbelägen richten sich nach der Bau- und Leistungsbeschreibung und werden im Rahmen der Bemusterung festgelegt. Sanitärausstattung und Fliesenarbeiten werden ebenfalls gemäß Bau- und Leistungsbeschreibung ausgeführt; individuelle Ausstattungswünsche können nach Vereinbarung berücksichtigt werden.

Sonstige Angaben

Bei dem Objekt handelt es sich um ein geplantes Bauvorhaben; dargestellte Grundrisse, Flächenangaben, Visualisierungen und Ausstattungsmerkmale können je nach Planungs- bzw. Ausführungsstand abweichen.

Der angebotene Kaufgegenstand umfasst Haus und Grundstück. Die Ausführung und die im Kaufpreis enthaltenen Leistungen ergeben sich aus der Bau- und Leistungsbeschreibung. Sonderwünsche und Mehr-/Minderleistungen sind – sofern technisch möglich – nach Vereinbarung realisierbar.

Termine für Beratung und Besprechung der Ausführung/Bemusterung sind nach Vereinbarung möglich; auf Wunsch stellen wir Ihnen weitere Unterlagen zur Verfügung.